手机版
项目地址:昆明·水岸青城
户型面积:97平米
装修风格:北欧风格
设计师:郭燕
客户经理:邓龙静
项目经理:朱吉国
本案属小户型,设计师在房子原有结构基础上,结合业主想在居住空间上体现一些北欧风元素的需求,选择了灰蓝色墙面,搭配原木色家具,清新又温馨。

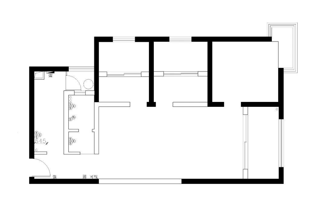
原始平面图

平面布置图
客 厅

从入户处望向客厅,灰蓝色搭配温润的木质家具,胡桃木色地板让色彩更分明,灰色布艺沙发质朴舒适,搭配起来和谐有序,整个空间非常静谧。

朴实天然的原木色结合空间中的留白设计,营造一种不加修饰的美感。运用的植物装饰、撞色系抱枕,涌现自然活泼的生机感,沙发旁的简约木质黑金属隔断,小巧精致的桌几软凳,可爱的动物凳,体现空间高级感与灵动性。

阳台嵌入的洗衣机与洗手台、米白木色储物吊柜设计,让简洁的空间更具深度,也更加实用美观。

餐 厅

原木风餐桌,光滑的木质桌面让木材具备现代之美,符合人体坐姿需求的餐椅,倍感舒适,一抹纯白色花艺让餐厅散发一种澄净的美感。卡座的设计既节省了空间也巧妙地处理了冰箱布局,让空间便利而不凌乱。

主 卧

简约推拉式衣柜,自然嵌入墙体的规整感,提升了空间的利用率,让卧室变得轻盈便利。柔软的床品、墨绿色的跳跃点缀,飘窗充足的自然光影,氤氲出有温度的睡眠环境。

卫 生 间

简约不失格调的卫生间,格局布置、空间设计中处处透露着一份生活的巧思。循序渐进的干湿分离设计,确保了卫生间的干净清爽,与洗漱台配套的镜柜、地柜设计,合理地成为卫生间的收纳担当,为空间带来整洁、利落的视觉效果。
客 卧

客房榻榻米和书桌结合,半开放式设计,层次感鲜明,有书房的功能性需求赢得了更多的收纳空间。低饱和度的莫兰迪色系窗帘,遇上温润自然的原木,交织出清新宁静的舒适空间。