手机版
项目名称: 昆明·悦湖郡
项目面积:450平米
设计师:唐姚
设计风格:美式
项目经理:崔泽辉
客户经理:杨宗梅
本案的地下室是一个半下沉的空间,设计师将原本很高的空间进行重组,划分成负一,负二两层。

负二层平面布置图▲

负一层平面布置图▲

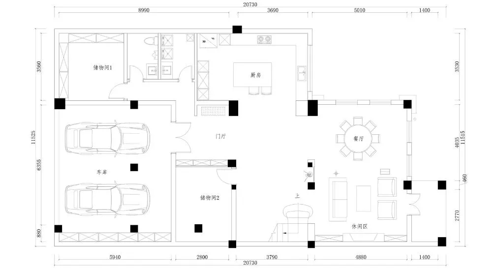
一层平面布置图▲

二层平面布置图▲
选择一种生活,或精致,或洒脱,或华丽,或朴实。业主通过多年的打拼,经历过风风雨雨,更想追求一种赤脚踩在地上,阳光洒在身上的生活感受,所以本案致力于打造一种自然,朴实的家居体验。




▲客厅体现着主人的气质品位,没有太多造作的装饰与约束,大大的落地窗让空间通透明亮,搭配着较有文化感的家具,得体不失贵气。


▲电视背景墙采用石材,地面采用的仿古砖和地板,仿旧的材质富有历史气息。

▲公共休闲,餐饮的空间规划在负二层,保留原有的中空,连接着室外花园和负一楼和娱乐空间,各个功能分区形成一种联系。




▲休闲区营造的是一种超自然的休闲状态,粗糙的文化石装饰的柱子和真火壁炉让空间充满着异域的文化感,结着疤的实木地板和家具的搭配多了些许随性,自然朴实;仿佛能够看到主人与亲友们围着火炉谈论那些美好事物的时光。


▲开放式的厨房功能划分简明合理,面积有近三十平方,连接着花园一角,让主人在任何一个空间都能够感受家的赏心悦目。


▲二楼的书房整体选用原木色系,将室内和室外打通形成一间,原有室外露台与室内的高差进行了保留,大面的落地窗将室外的景色引进室内。在这里安静的看看书,品品茶,慢慢感受时间留下的温度。